Groundbreaking Development: Devon Self Storage, Southfield MI
Making a name for itself as a premier residential destination and business center, Southfield, Mich.,has something for everyone. And by the end of 2024, it will have its own premier storage facility in Devon Self Storage, part of the The Inland Real Estate Group of Companies.
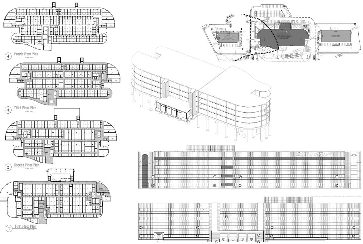
This four-story facility, a former office building that was converted by Devon following the meticulously laid plans of Designhaus Architecture, offers 748 climate-controlled units and 2,300 square feet of retail space. Many structural modifications were made to meet storage floor load requirements, and compliance with strict codes pertaining to aesthetics and landscaping was critical so that the facility would seamlessly integrate into its surroundings.
Once that was in order, insulated metal paneling, epoxy flooring, and upper floor tinted-glass windows were added, along with a covered loading bay, high-speed elevators, overhead doors, high-tech security, and an access control system.

Located off Michigan’s well-traveled Northwestern Highway with easy visibility from the John C. Lodge freeway, it can be seen by more than 200,000 commuters every day.



More Content
Popular Posts
The self storage industry is in a precarious...
Joe Shoen, CEO of U-Haul, has had enough.
Like its name implies, Surprise, Ariz., a...
Joe Shoen has had enough.
In a record-breaking deal finalized May 12,...
Senate Bill 709 (SB709) has many in the...
Donald Trump has just reclaimed the White...
The question of “abandonment” of stored...
Self-storage operators wear a lot of hats....
In 1992, Clinton strategist James Carville...
Recent Posts
When Neville Kennard left for a work trip to...
Self-storage software is no longer...
The self-storage industry continues to...
Fires in California. Tornadoes in Kansas....
From policy pivots in Ottawa to tariff...
Self-storage operators have struggled to...
Their signature red coats may draw attention...
Nailing down Josh and Melissa Huff for an...
